I’m working on a bathroom redesign for a man with bilateral leg amputations, we’ll call him Mr. D. I would love some help. I’m actually redesigning the entire house but this master bathroom is difficult. I ask myself what would Frank Lloyd Wright do? š
Mr. D has a ‘wheelchair accessible’ home but it was designed when he was ambulatory with prosthetic legs. Now Mr. D is in a power wheelchair that has the controls on the right hand side, which means he has to perform lateral sliding transfers to the left side.
Here is a lateral transfer:
Things to take into consideration for the design:
|
Primary power wheelchair
|
Exterior power wheelchair
|
|
|
Width
|
26ā
|
28ā
|
|
Length
|
47ā
|
51ā
|
|
Height
|
51ā
|
52ā
|
|
Top of seat cushion
|
22.5ā
|
24ā
|
|
Joystick height
|
34ā
|
35ā
|
|
Turn radius of wheelchair
|
5ā4ā
|
5ā6ā
|
|
Floor to top of head
|
55ā
|
|
Floor to eye level
|
48ā
|
|
Floor to top of knees
|
26.5ā
|
|
Front
|
Right side
|
Left side
|
|
|
Low reach
|
2ā
|
4ā
|
6ā
|
|
High reach
|
68ā
|
69ā
|
51ā
|
More things to consider:
- Performs left lateral transfers.
- He has a power wheelchair.
- He lives alone.
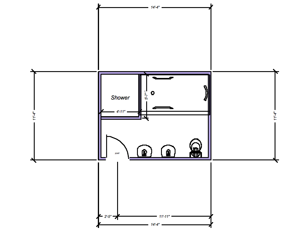
Here is the current design of his bathroom:
Issues with this bathroom:
- Toilet is in corner, only room for right lateral transfers. He doesn’t use this toilet it’s too difficult to transfer.
- Shower is too deep (5’7″) which means he has to drive his power wheelchair into the shower transfer onto his bath transfer bench then drive the power chair out of the shower as far as he can so the controls don’t get wet. If the controls get wet the wheelchair electronics are destroyed.
- Shower is too narrow to turn the wheelchair to allow for a lateral transfer. He must perform front transfers which for him is holding onto the grab bar and the wheelchair armrest, lifting himself into the air and flinging his body forward onto the shower chair. Not pretty, not safe, not easy.
- Bathtub is too wide to safely utilize a bathlift.
Need to have incorporated into this design:
- Low threshold shower or barrier-free shower. Since Mr. D doesn’t have or want a rolling shower chair, he prefers to transfer onto a shower chair he doesn’t require a roll-in shower. A bath transfer bench or built-in shower transfer chair will work well for him and having a small threshold will prevent water from getting onto the floor, which always seems to be an issue with barrier-free shower.
- Jacuzzi tub with bathlift.
- Handicap height toilet.
- 2 sinks, current sinks are pedestal sinks, the wheelchair hits the pedestals so would like a different style sink.
Any thoughts please post, any designs please send to Service@functionalhomes.net. I’ll add them to this post along with your byline.

